


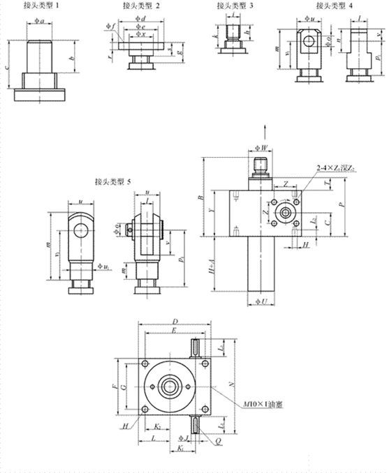
CS系列蝸輪絲桿升降機(螺旋升降機)表面精密加工的獨特的外形結構,六面均可以精確定位,可以根據使用要求,按減速比不同有N型和L型可供選用,隨意拼裝組合,被歐洲人譽為“神奇的積木式魔塊”。該方形外形結構已獲得我公司“外觀設計專利”。低速重載可選用梯形絲杠高速輕載則可以選用滾珠絲杠;可以選用絲杠往復也可以選用螺母往復。
“N型”的升降機輸入軸每轉1圈,提升1㎜;“L型”的升降機輸入軸每轉1圈,提升0.25㎜,換算極其方便。絲桿升降機最大提升速度1.5m/min最高輸入轉速1500r/min,


|
型號CS
|
CS2.5
|
CS5
|
CS10
|
CS25
|
CS50
|
CS150
|
CS250
|
CS350
|
CS500
|
|
絲杠
|
Tr14×4
|
Tr18×4
|
Tr20×4
|
Tr30×6
|
Tr40×7
|
Tr60×9
|
Tr80×10
|
Tr100×10
|
Tr120×14
|
|
C
|
25
|
31
|
37.5
|
41
|
58.5
|
80
|
82.5
|
110
|
133
|
|
D
|
60
|
80
|
100
|
130
|
180
|
200
|
240
|
290
|
360
|
|
E
|
48
|
60
|
78
|
106
|
150
|
166
|
190
|
230
|
290
|
|
F
|
50
|
72
|
85
|
105
|
145
|
165
|
220
|
250
|
300
|
|
G
|
38
|
52
|
63
|
81
|
115
|
131
|
170
|
190
|
230
|
|
H
|
M6
|
M8
|
M8
|
M10
|
M12
|
M20
|
M30
|
M36
|
M42
|
|
ΦJk6
|
9
|
10
|
14
|
16
|
20
|
25
|
30
|
35
|
48
|
|
K1
|
20
|
25
|
32
|
45
|
63
|
71
|
80
|
100
|
135
|
|
K2
|
16
|
21
|
29
|
42
|
63
|
66
|
75
|
95
|
115
|
|
L
|
22
|
31
|
40
|
54
|
78
|
83
|
100
|
125
|
150
|
|
L1
|
20
|
22.5
|
22.5
|
43
|
45
|
65
|
65
|
63
|
97.5
|
|
L2
|
12
|
13
|
15
|
15
|
16
|
30
|
45
|
54
|
80
|
|
N
|
92
|
120
|
140
|
195
|
240
|
300
|
355
|
380
|
500
|
|
NL
|
Lift+60
|
Lift+68
|
Lift+74
|
Lift+86
|
Lift+123
|
Lift+149
|
Lift+160
|
Lift+180
|
Lift+220
|
|
P
|
62
|
74
|
93
|
105
|
149
|
200
|
205
|
270
|
326
|
|
Q
|
3×3×14
|
3×3×18
|
5×5×20
|
5×5×36
|
6×6×36
|
8×7×56
|
8×7×56
|
10×8×56
|
14×9×90
|
|
T
|
12
|
12
|
18
|
23
|
32
|
40
|
40
|
50
|
60
|
|
ΦW
|
26
|
30
|
40
|
46
|
70
|
85
|
120
|
145
|
170
|
|
裕度X
|
10
|
12
|
15
|
20
|
25
|
25
|
25
|
25
|
30
|
|
Y
|
50
|
62
|
75
|
82
|
117
|
160
|
165
|
220
|
266
|
|
Z
|
24
|
32.5
|
35
|
44
|
55
|
70
|
-
|
-
|
-
|
|
Z1
|
M6
|
M8
|
M8
|
M8
|
M10
|
M10
|
-
|
-
|
-
|
|
Z2
|
6
|
10
|
12
|
12
|
15
|
15
|
-
|
-
|
-
|
|
運動螺母
|
|||||||||
|
a
|
40
|
44
|
44
|
46
|
73
|
99
|
110
|
130
|
160
|
|
b
|
10
|
12
|
12
|
14
|
16
|
20
|
30
|
35
|
40
|
|
Φch9
|
24
|
28
|
32
|
42
|
63
|
85
|
105
|
130
|
160
|
|
Φd
|
44
|
48
|
55
|
66
|
95
|
125
|
190
|
240
|
300
|
|
Φe
|
34
|
38
|
45
|
54
|
78
|
105
|
150
|
185
|
230
|
|
Φf
|
5
|
6
|
7
|
7
|
9
|
11
|
17
|
25
|
28
|
|
絲杠接頭類型1
|
|||||||||
|
h
|
12
|
15
|
20
|
25
|
30
|
45
|
75
|
100
|
120
|
|
Φik6
|
8
|
12
|
15
|
20
|
25
|
40
|
60
|
80
|
95
|